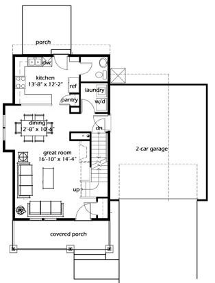
This 1,560 sf two story home features a large open great room dining room and kitchen on the main floor. Upstairs is 4 bedrooms and 2 baths. Also included is a large covered front porch and an attached two car garage.
The plans include three elevations
The plans include three elevations
IMPORTANT INFORMATION
Please note that in most areas of the country, these house plans will be everything you need to build, but not necessarily everything you need to obtain a building permit.
ADDITIONAL ITEMS THAT MAY BE NEEDED
A site plan that shows where the house is going to be located on the property
A site specific soils test
Foundation and Structural Design specific to your lot and jurisdictional requirements
Septic or other utility design.
Energy Code Compliance certification.
Please note that in most areas of the country, these house plans will be everything you need to build, but not necessarily everything you need to obtain a building permit.
ADDITIONAL ITEMS THAT MAY BE NEEDED
A site plan that shows where the house is going to be located on the property
A site specific soils test
Foundation and Structural Design specific to your lot and jurisdictional requirements
Septic or other utility design.
Energy Code Compliance certification.
First Floor Plan
700 square feet
Second Floor Plan
960 square feet



Pricing
Downloadable PDF set
Coming Soon!
Custom Changes
Contact Us
The images and plans found on these pages are the exclusive intellectual property of Blue Stone Design Group, LLC. They are intended for personal use only and should not be reproduced or distributed. To obtain multiple licenses please contact us.
Please allow 1-2 weeks to process your order.
Please allow 1-2 weeks to process your order.